141310, Московская область, г. Сергиев Посад,
ул. Осипенко д. 6 оф. 526
Пн-Вс 10:00–20:00

Купить деревянный дом из бруса

от 2 650 000

Стоимость от 2 650 000
142 кв.м
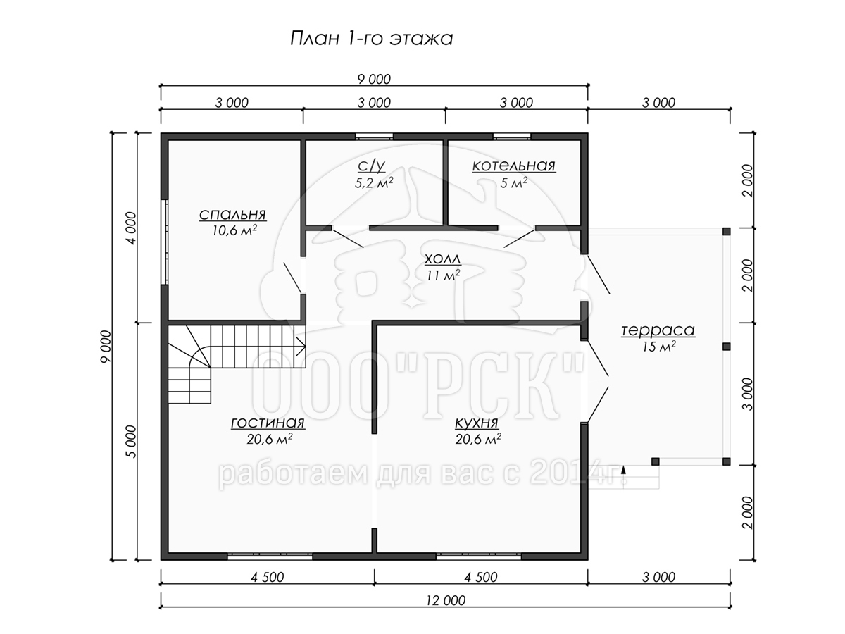
9х9 м
1,5 этажа
2 санузла
3 спальни
<
>

Планировка дома из бруса ДБ-214

На нашем сайте вы можете купить деревянный дом из бруса высокого качества. Мы предлагаем широкий выбор домов различного размера и планировки, которые удовлетворят все ваши потребности. Надежные материалы и современные технологии строительства гарантируют долговечность и комфорт вашего будущего дома. Закажите деревянный дом из бруса прямо сейчас и создайте уютное и экологически чистое жилье для себя и своей семьи.
ООО "РСК"
Данная комплектация представлена для строительства дома из бруса под усадку. Комплектация может быть дополнена инженерными, электрическими системами скрытого и открытого типа, ретро проводкой, монтажом инженерных коммуникаций открытого , частичного или полностью скрытого типа. Любая комплектация обсуждается и может быть изменена по желанию заказчика

Цена деревянного дома из бруса

Хотите купить деревянный дом из бруса по низкой цене?
Широкий выбор моделей и вариантов отделки. Индивидуальный подход к каждому клиенту. Построим вашу мечту!
По желанию заказчика мы можем внести коррективы в любой из пунктов комплектации
  • Комплектация: "Комфорт"

    от 2 650 000

    Фундамент

    • ленточный армированный 300*700 мм

    Стены

    • Брус наружные стены 100 мм
    • Брус внутренние перегородки 100 мм
    • Высота потолка 1э Н=2,4 м
    • Стропильная система- 150 мм
    • Антисептирование стропил и лаг
    • Лаги 1-го этажа - доска обрез 150 мм
    • Лаги 2-го этажа - доска обрез 150 мм

    Кровля

    • под металлочерепицу с временным покрытием ХПП 2мм
  • Комплектация "Комфорт плюс"

    от 3 190 000

    Фундамент

    • ленточный армированный 300*1000 мм

    Стены

    • Брус наружные стены 150 мм
    • Брус внутренние перегородки 100 мм
    • Высота потолка 1э Н=2,6 м
    • Стропильная система- 200 мм
    • Антисептирование стропил и лаг
    • Лаги 1-го этажа - доска обрез 200 мм
    • Лаги 2-го этажа - доска обрез 200 мм

    Кровля

    • под металлочерепицу с временным покрытием ХПП 2мм
  • Комплектация "Люкс"

    от 4 190 000

    Фундамент

    • ленточный армированный 400*1000 мм

    Стены

    • Брус наружные стены 200 мм
    • Брус внутренние перегородки 150 мм
    • Высота потолка 1э Н=3 м
    • Стропильная система- 200 мм
    • Антисептирование стропил и лаг
    • Лаги 1-го этажа - доска обрез 200 мм
    • Лаги 2-го этажа - доска обрез 200 мм

    Кровля

    • под металлочерепицу с временным покрытием ХПП 3мм

Как мы работаем

Этапы взаимодействия с нашими клиентами
1
Заявка или звонок
Свяжитесь с нами любым удобным способом: оставьте заявку, позвоните или напишите нам в мессенджер
2
Консультация
Наш специалист сориентирует вас по комплектациям и срокам возведения дома или бани
3
Выбор проекта
Выберите подходящий проект и технологию строительства
4
Обсуждение проекта
Обсуждаем дополнительные работы по коммуникациям
5
Осмотр участка
Выполняем геодезические исследования для определения типа фундамента
6
Заключение договора
Подписываем договор и приступаем к работе, согласно утвержденному проекту
Мы готовы ответить на Ваши вопросы
Заинтересованы данным проектом? Можете оставить Ваш телефон, и мы перезвоним